Официальное опубликование правовых актов
ОФИЦИАЛЬНОЕ ОПУБЛИКОВАНИЕ
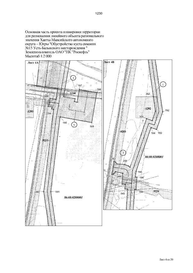
Постановление Правительства Ханты-Мансийского автономного округа - Югры от 11.12.2015 № 450-п
"Об утверждении документации по планировке территории для размещения линейных объектов регионального значения Ханты-Мансийского автономного округа - Югры"
Номер опубликования: 8600201512220010
Дата опубликования: 22.12.2015
Страница №1230 из 1333:
Увеличить