Официальное опубликование правовых актов
ОФИЦИАЛЬНОЕ ОПУБЛИКОВАНИЕ
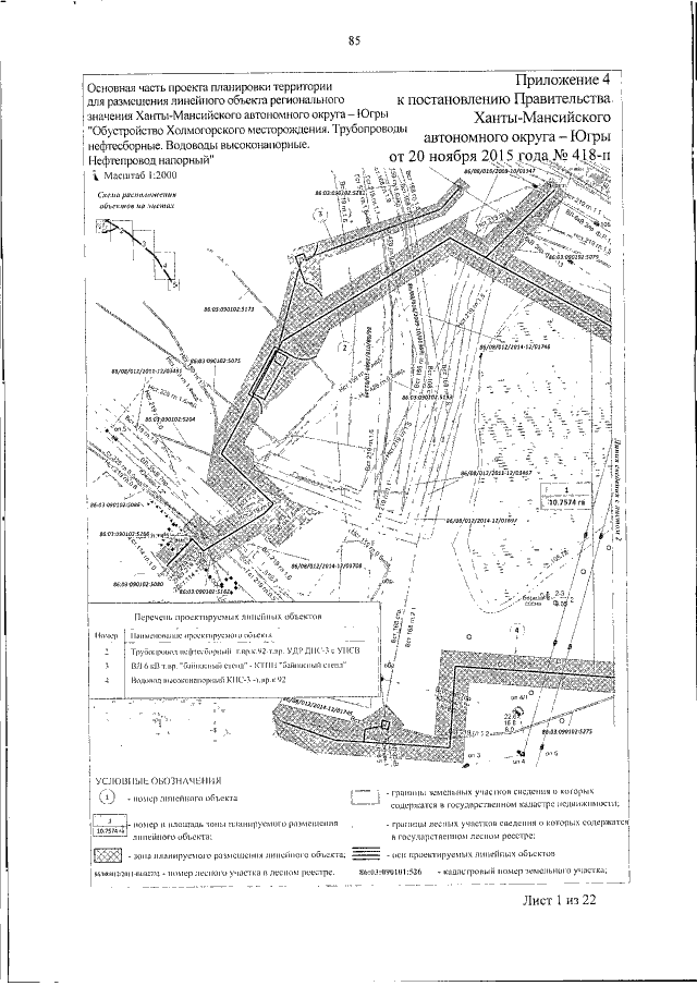
Постановление Правительства Ханты-Мансийского автономного округа - Югры от 20.11.2015 № 418-п
"Об утверждении документации по планировке территории для размещения линейных объектов регионального значения Ханты-Мансийского автономного округа - Югры"
Номер опубликования: 8600201511260002
Дата опубликования: 26.11.2015
Страница №85 из 517:
Увеличить