Официальное опубликование правовых актов
ОФИЦИАЛЬНОЕ ОПУБЛИКОВАНИЕ
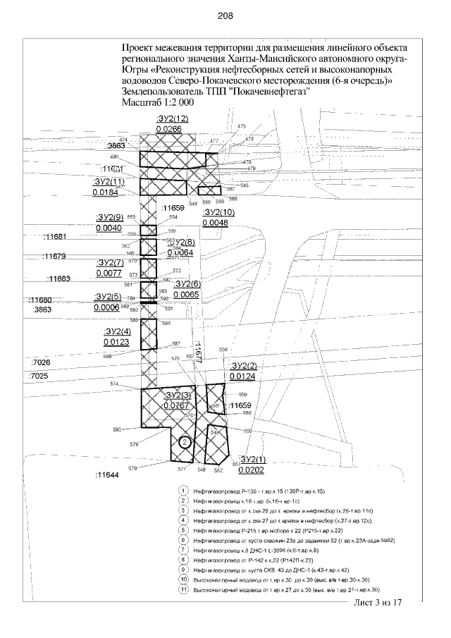
Постановление Правительства Ханты-Мансийского автономного округа - Югры от 04.09.2015 № 311-п
"Об утверждении документации по планировке территории для размещения линейных объектов регионального значения Ханты-Мансийского автономного округа - Югры"
Номер опубликования: 8600201509090001
Дата опубликования: 09.09.2015
Страница №208 из 229:
Увеличить