Официальное опубликование правовых актов
ОФИЦИАЛЬНОЕ ОПУБЛИКОВАНИЕ
Распоряжение Комитета по государственному контролю, использованию и охране памятников истории и культуры от 12.02.2026 № 24-рп
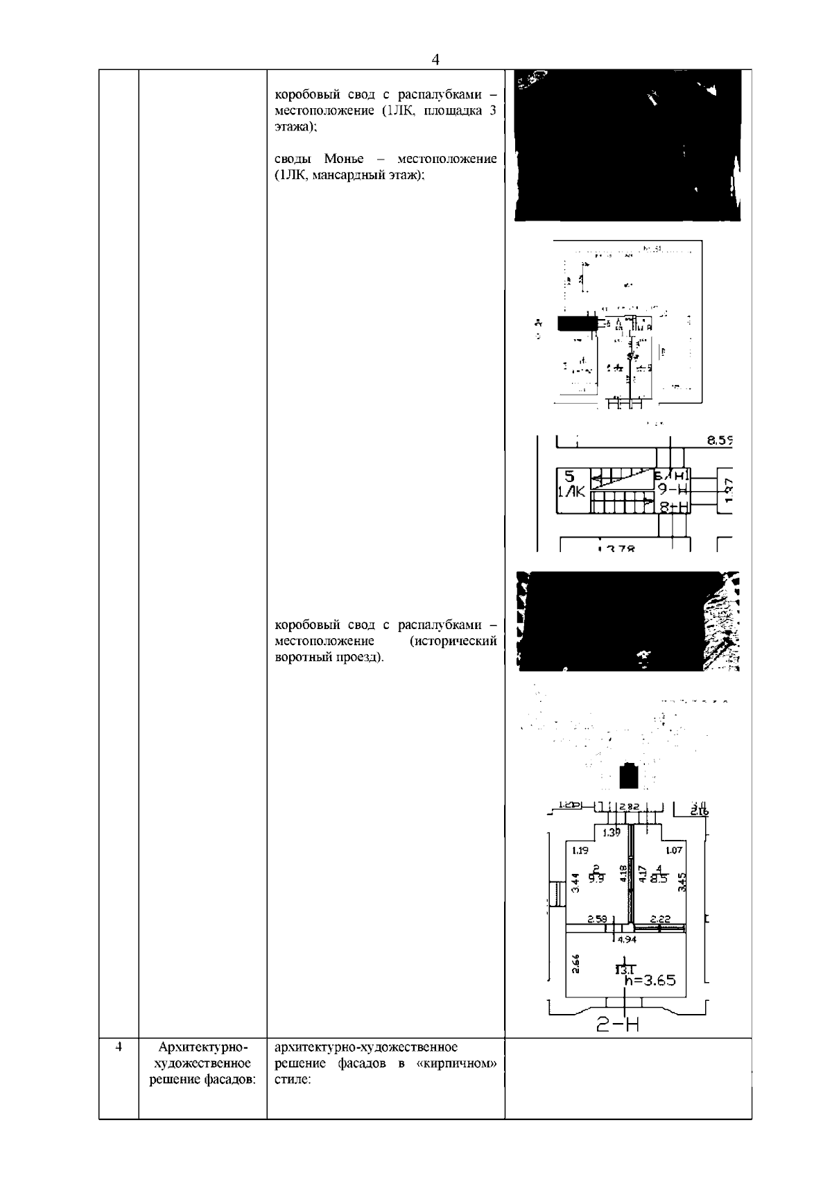
"О включении выявленного объекта культурного наследия в единый государственный реестр объектов культурного наследия (памятников истории и культуры) народов Российской Федерации в качестве объекта культурного наследия регионального значения "Комплекс Санкт-Петербургской одиночной тюрьмы ("Кресты")", об утверждении границ и режима использования территории объекта культурного наследия, об утверждении предмета охраны объекта культурного наследия"
(Зарегистрирован 12.02.2026 № 51847)
Номер опубликования: 7801202602170002
Дата опубликования: 17.02.2026
Страница №12 из 75:
Увеличить