Официальное опубликование правовых актов
ОФИЦИАЛЬНОЕ ОПУБЛИКОВАНИЕ
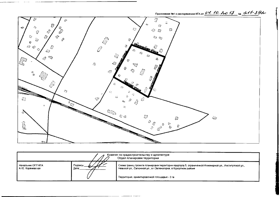
Распоряжение Комитета по градостроительству и архитектуре Санкт-Петербурга от 04.10.2017 № 211-392
"О подготовке изменений в проект планировки территории, ограниченной пр.Ленина, полосой отвода железной дороги, границей муниципального образования г.Зеленогорск, административной границей Санкт-Петербурга, в г.Зеленогорске Курортного района, утвержденный постановлением Правительства Санкт-Петербурга от 30.10.2012 №1165, в части территории квартала 5, ограниченной Инженерной ул., Институтской ул., Невской ул., Сапожной ул., в г.Зеленогорске, в Курортном районе"
Номер опубликования: 7801201710050003
Дата опубликования: 05.10.2017
Страница №3 из 10:
Увеличить