Распоряжение Комитета по градостроительству и архитектуре Санкт-Петербурга от 14.08.2017 № 211-307
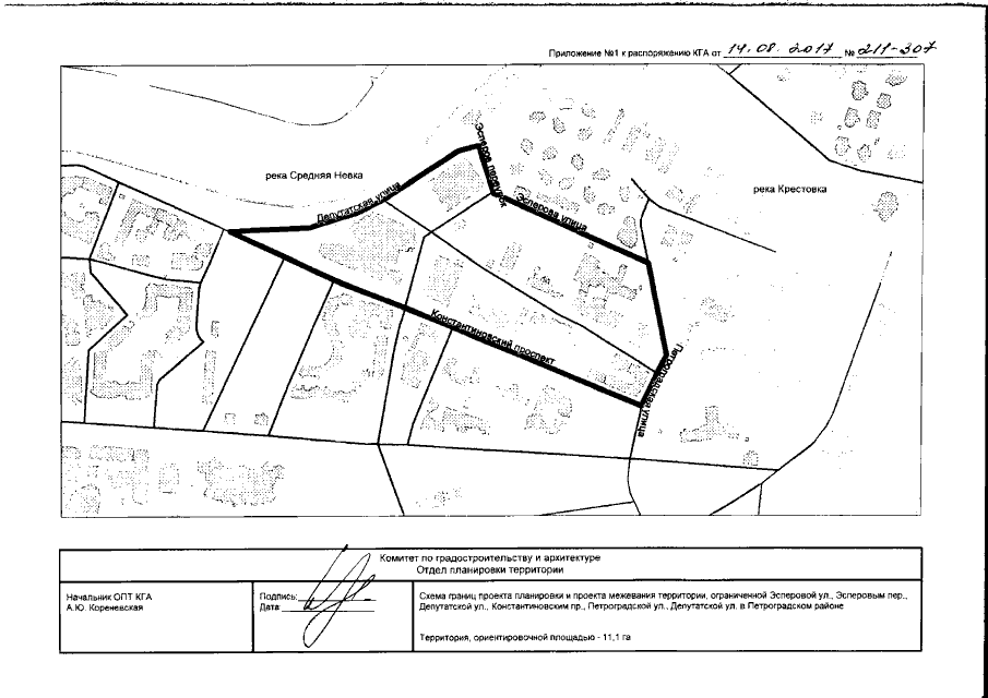
"О подготовке документации по планировке территории, ограниченной Эсперовой ул., Эсперовым пер., Депутатской ул., Константиновским пр., Петроградской ул., Депутатской ул., в Петроградском районе"
"О подготовке документации по планировке территории, ограниченной Эсперовой ул., Эсперовым пер., Депутатской ул., Константиновским пр., Петроградской ул., Депутатской ул., в Петроградском районе"
Номер опубликования: 7801201708160002
Дата опубликования:
16.08.2017
