Официальное опубликование правовых актов
ОФИЦИАЛЬНОЕ ОПУБЛИКОВАНИЕ
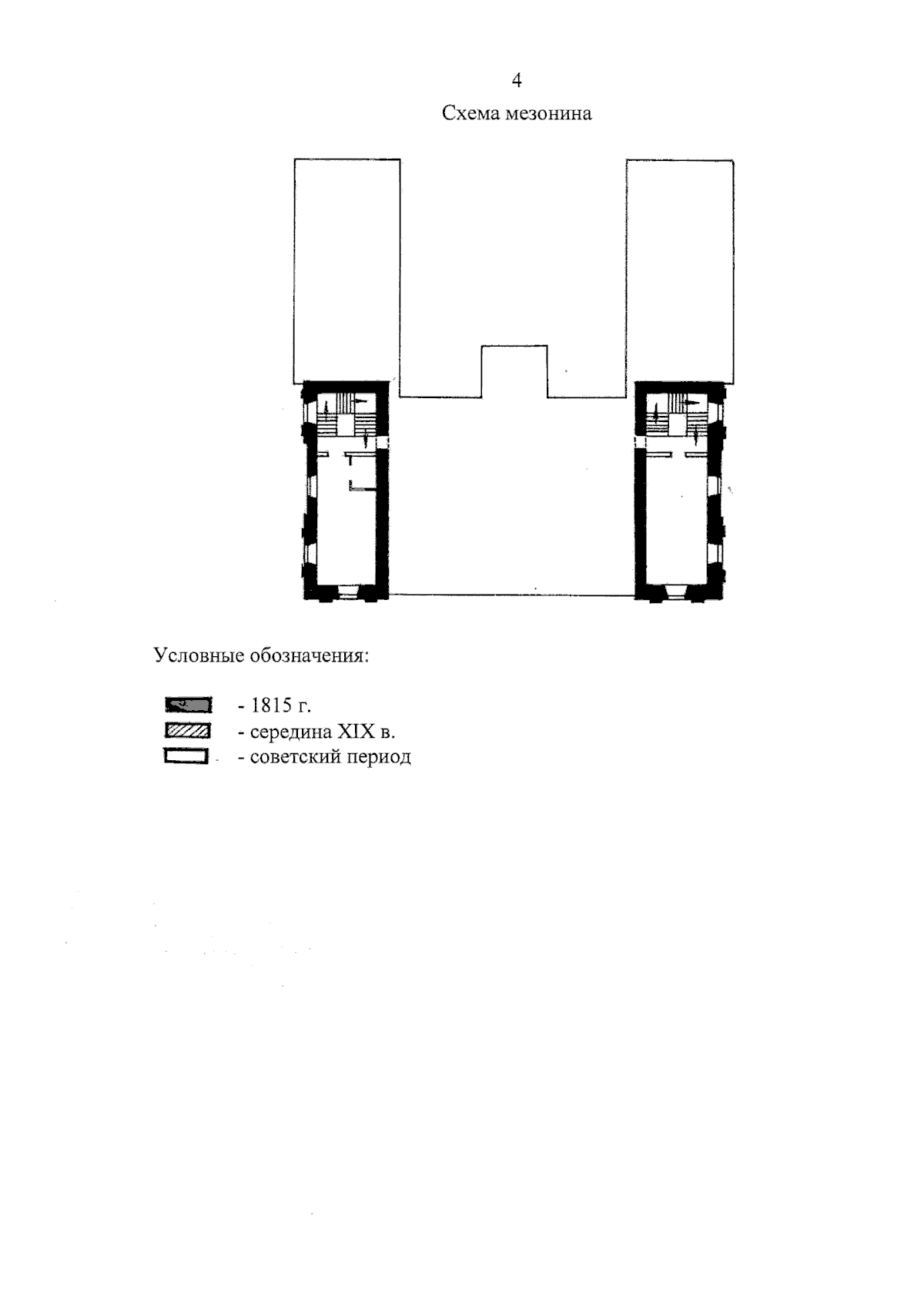
Приказ Департамента охраны объектов культурного наследия Ярославской области от 30.08.2023 № 87
"Об утверждении предмета охраны объекта культурного наследия федерального значения"
(Зарегистрирован 30.08.2023 № 36-13742)
Номер опубликования: 7601202308310005
Дата опубликования: 31.08.2023
Страница №5 из 5:
Увеличить