Официальное опубликование правовых актов
ОФИЦИАЛЬНОЕ ОПУБЛИКОВАНИЕ
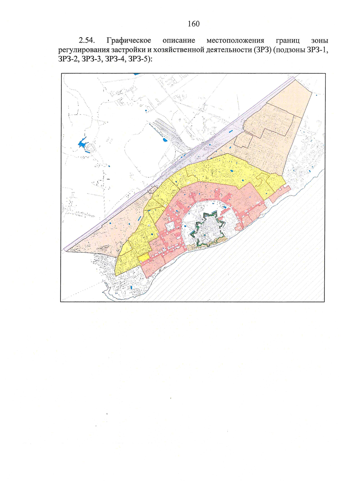
Постановление Правительства Ярославской области от 13.02.2025 № 123-п
"Об утверждении границ зон охраны объекта культурного наследия федерального значения, режимов использования земель и требований к градостроительным регламентам в границах территорий данных зон"
Номер опубликования: 7600202502170004
Дата опубликования: 17.02.2025
Страница №163 из 357:
Увеличить