Постановление Правительства Забайкальского края от 23.06.2023 № 315
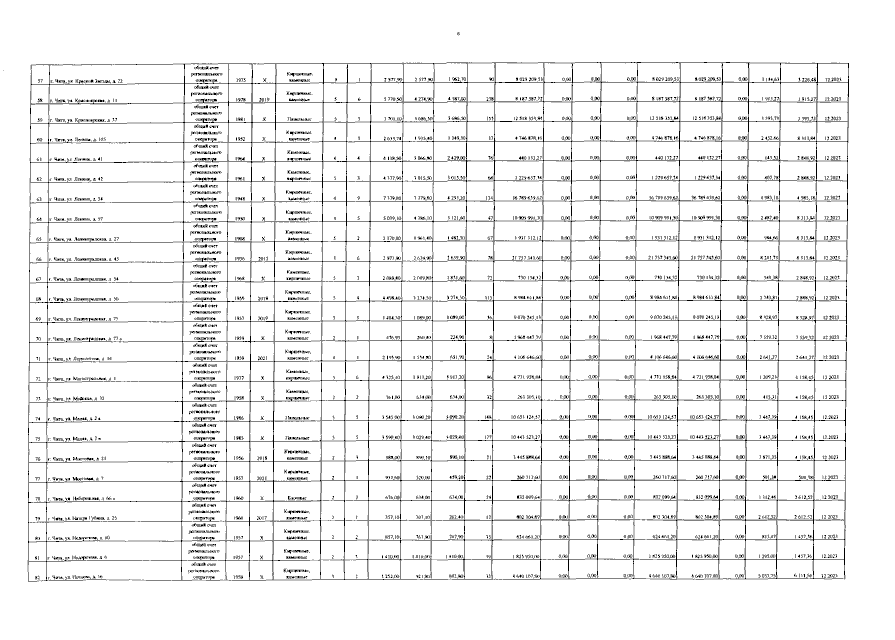
"О внесении изменений в Региональный краткосрочный план реализации Региональной программы капитального ремонта общего имущества в многоквартирных домах, расположенных на территории Забайкальского края, на период 2023-2025 годов"
"О внесении изменений в Региональный краткосрочный план реализации Региональной программы капитального ремонта общего имущества в многоквартирных домах, расположенных на территории Забайкальского края, на период 2023-2025 годов"
Номер опубликования: 7500202306260004
Дата опубликования:
26.06.2023
