Постановление Правительства Челябинской области от 12.12.2025 № 807-П
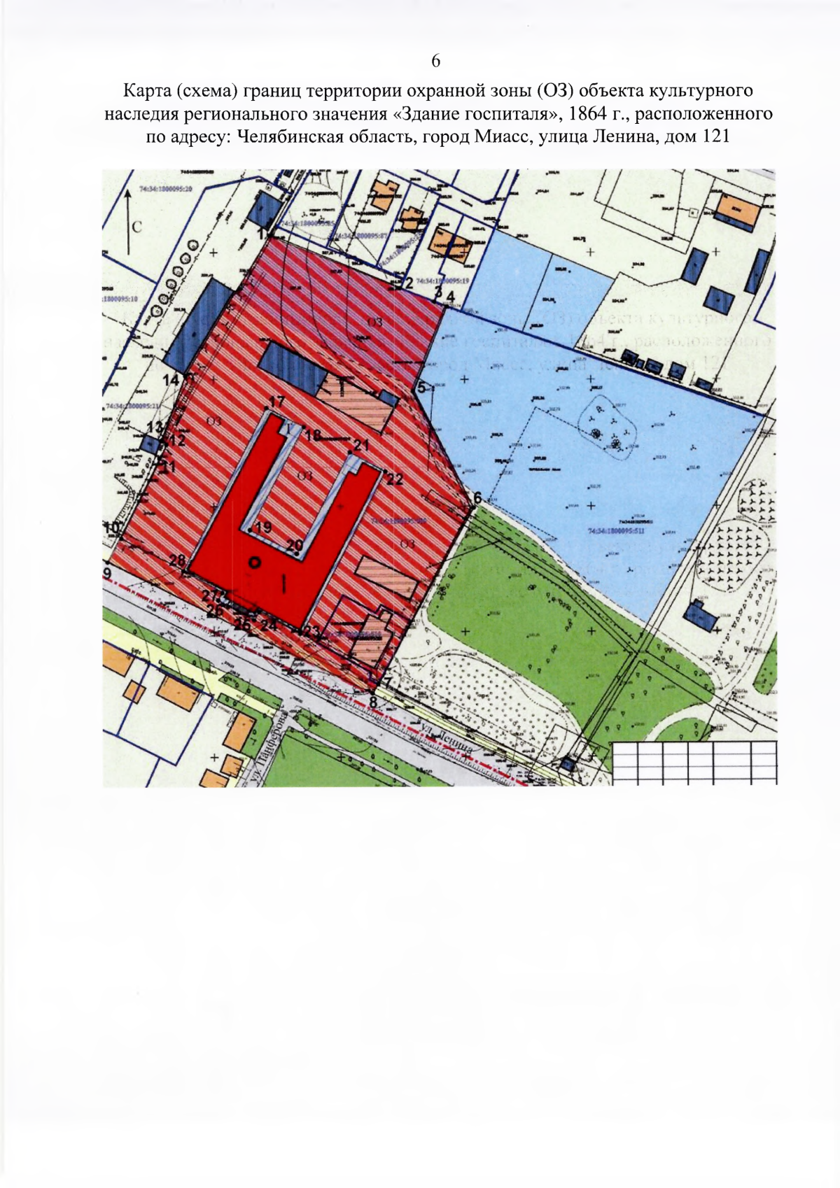
"О принятии решения об установлении зон охраны и утверждении требований к градостроительным регламентам в границах территорий зон охраны объекта культурного наследия регионального значения "Здание госпиталя", 1864 г., расположенного по адресу: Челябинская область, город Миасс, улица Ленина, дом 121"
"О принятии решения об установлении зон охраны и утверждении требований к градостроительным регламентам в границах территорий зон охраны объекта культурного наследия регионального значения "Здание госпиталя", 1864 г., расположенного по адресу: Челябинская область, город Миасс, улица Ленина, дом 121"
Номер опубликования: 7400202512160003
Дата опубликования:
16.12.2025
