Постановление Правительства Тюменской области от 29.06.2015 № 294-п
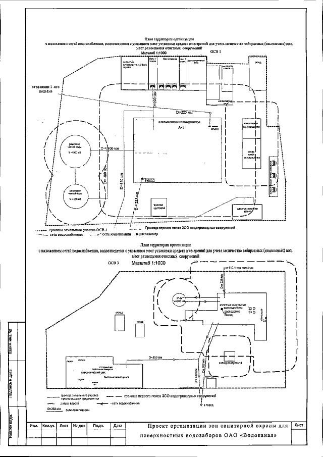
"Об утверждении проекта организации зон санитарной охраны реки Ишим для водозаборов ОСВ1, ОСВ3 ОАО "Водоканал"
"Об утверждении проекта организации зон санитарной охраны реки Ишим для водозаборов ОСВ1, ОСВ3 ОАО "Водоканал"
Номер опубликования: 7200201507060001
Дата опубликования:
06.07.2015
