Официальное опубликование правовых актов
ОФИЦИАЛЬНОЕ ОПУБЛИКОВАНИЕ
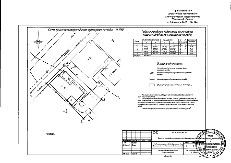
Постановление Правительства Тюменской области от 26.01.2015 № 14-п
"Об утверждении границ территорий, зон охраны объектов культурного наследия регионального значения, режимов использования земель и градостроительных регламентов в границах данных зон"
Номер опубликования: 7200201501300021
Дата опубликования: 30.01.2015
Страница №29 из 48:
Увеличить