Официальное опубликование правовых актов
ОФИЦИАЛЬНОЕ ОПУБЛИКОВАНИЕ
Постановление Правительства Тульской области от 17.03.2017 № 104
"О внесении изменений в постановление правительства Тульской области от 19.11.2013 № 660"
Номер опубликования: 7100201703210004
Дата опубликования: 21.03.2017
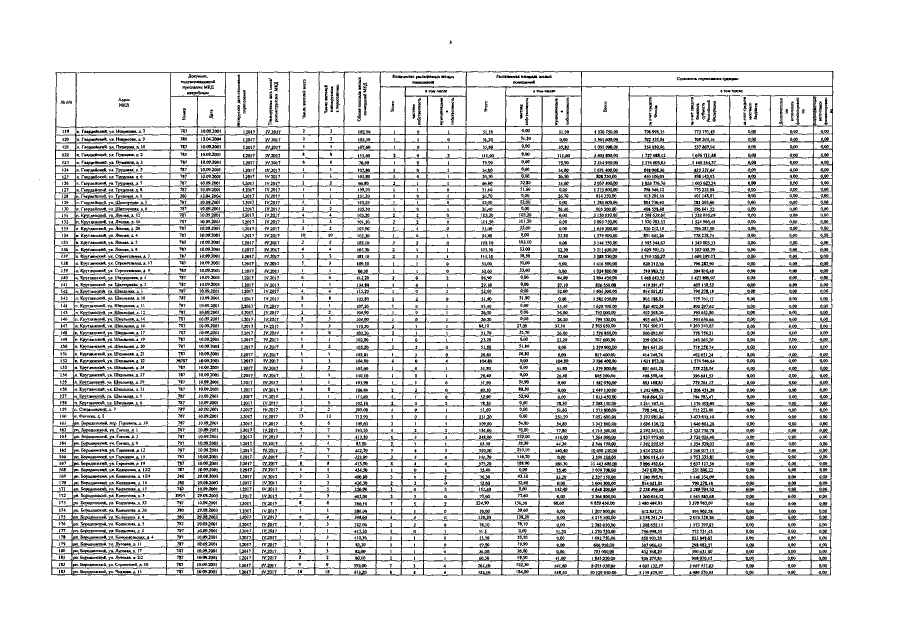
Страница №71 из 130:
Увеличить