Официальное опубликование правовых актов
ОФИЦИАЛЬНОЕ ОПУБЛИКОВАНИЕ
Постановление Правительства Тульской области от 01.06.2016 № 218
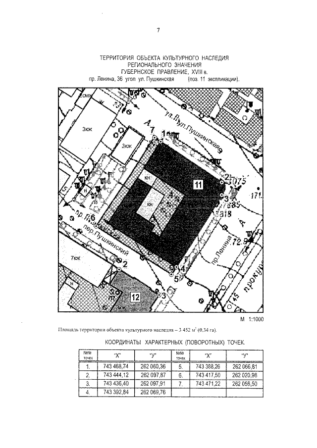
"Об утверждении объединенной зоны охраны и границ территорий объектов культурного наследия, расположенных в границах улиц Гоголевской, Бундурина, Каминского и проспекта Ленина города Тулы, режимов использования земель и градостроительных регламентов"
Номер опубликования: 7100201606020003
Дата опубликования: 02.06.2016
Страница №81 из 85:
Увеличить