Официальное опубликование правовых актов
ОФИЦИАЛЬНОЕ ОПУБЛИКОВАНИЕ
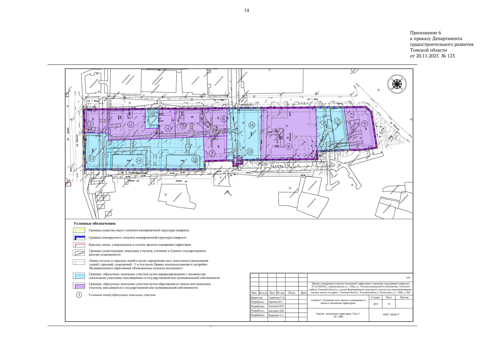
Приказ Департамента градостроительного развития Томской области от 20.11.2025 № 123
"Об утверждении проекта планировки и проекта межевания территории в границах кадастрового квартала 70:14:0203001, ограниченной ул. 1 Мая, ул. З.Космодемьянской в п. Копылово, Томского района Томской области, с целью формирования земельного участка под многоквартирным жилым домом по адресу: Томская область, Томский район, п. Копылово, ул. 1 Мая д. № 3"
(Зарегистрирован 21.11.2025 № 1331-91/2025)
Номер опубликования: 7001202511210001
Дата опубликования: 21.11.2025
Страница №14 из 36: