Официальное опубликование правовых актов
ОФИЦИАЛЬНОЕ ОПУБЛИКОВАНИЕ
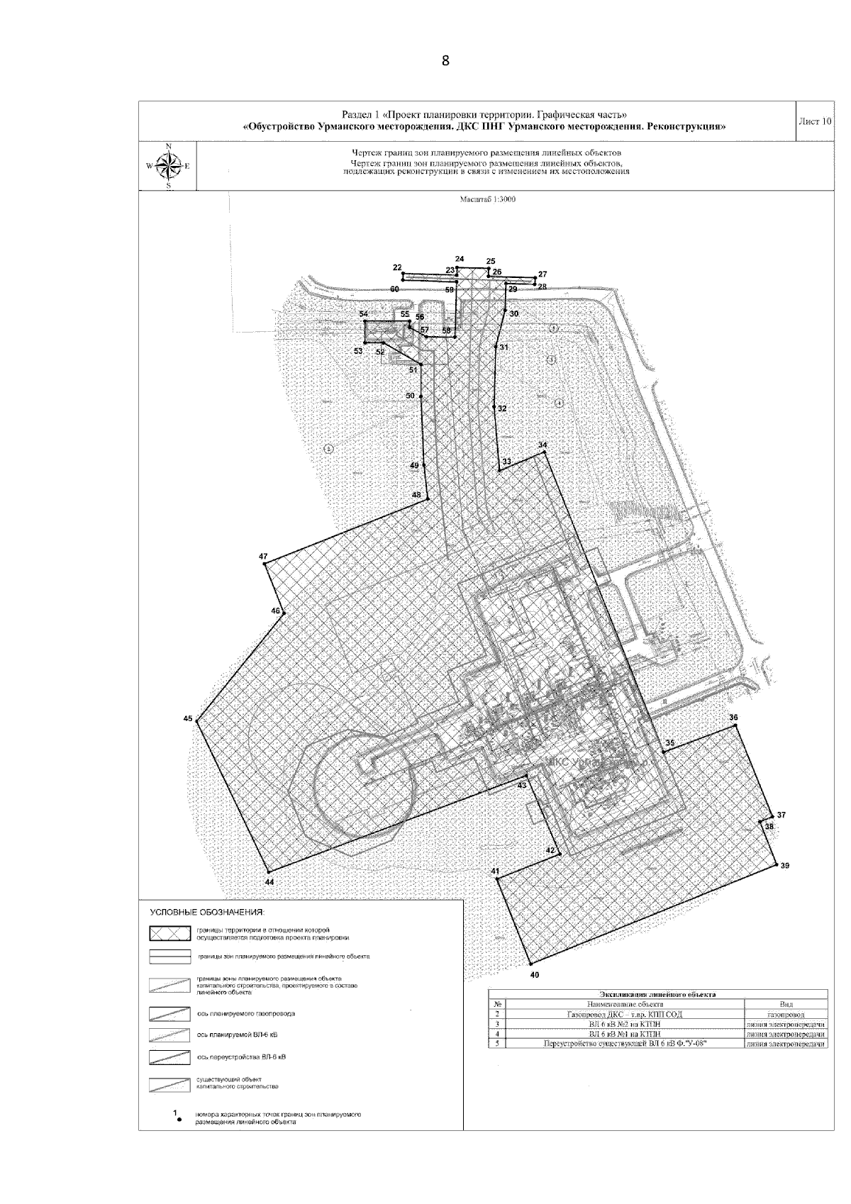
Приказ Департамента градостроительного развития Томской области от 06.06.2025 № 43
"Об утверждении проекта планировки территории для размещения линейного объекта "Обустройство Урманского месторождения. ДКС ПНГ Урманского месторождения. Реконструкция"
(Зарегистрирован 09.06.2025 № 646-91/2025)
Номер опубликования: 7001202506100002
Дата опубликования: 10.06.2025
Страница №8 из 23:
Увеличить