Приказ Комитета по охране объектов культурного наследия Томской области от 03.04.2025 № 0020/01-07
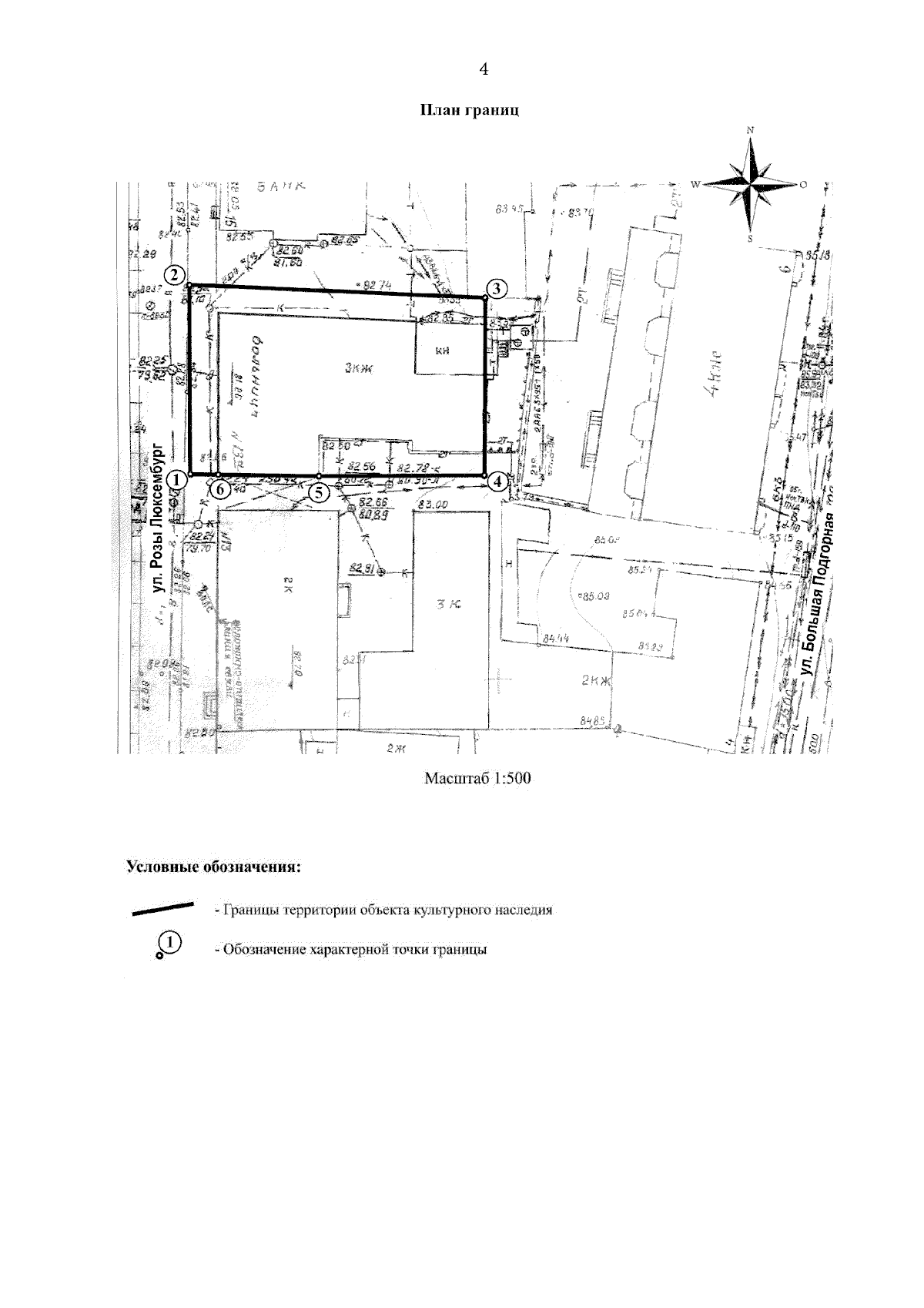
"О включении объекта культурного наследия регионального значения "Трехэтажный флигель усадьбы купца И.И. Колосова", 1870-е гг., 1891 г. в единый государственный реестр объектов культурного наследия (памятников истории и культуры) народов Российской Федерации, об утверждении границ его территории и предмета охраны (г. Томск, ул. Розы Люксембург, 13а)"
(Зарегистрирован 03.04.2025 № 376-48/2025)
"О включении объекта культурного наследия регионального значения "Трехэтажный флигель усадьбы купца И.И. Колосова", 1870-е гг., 1891 г. в единый государственный реестр объектов культурного наследия (памятников истории и культуры) народов Российской Федерации, об утверждении границ его территории и предмета охраны (г. Томск, ул. Розы Люксембург, 13а)"
(Зарегистрирован 03.04.2025 № 376-48/2025)
Номер опубликования: 7001202504070004
Дата опубликования:
07.04.2025
