Официальное опубликование правовых актов
ОФИЦИАЛЬНОЕ ОПУБЛИКОВАНИЕ
Приказ Департамента природных ресурсов и охраны окружающей среды Томской области от 24.01.2023 № 20
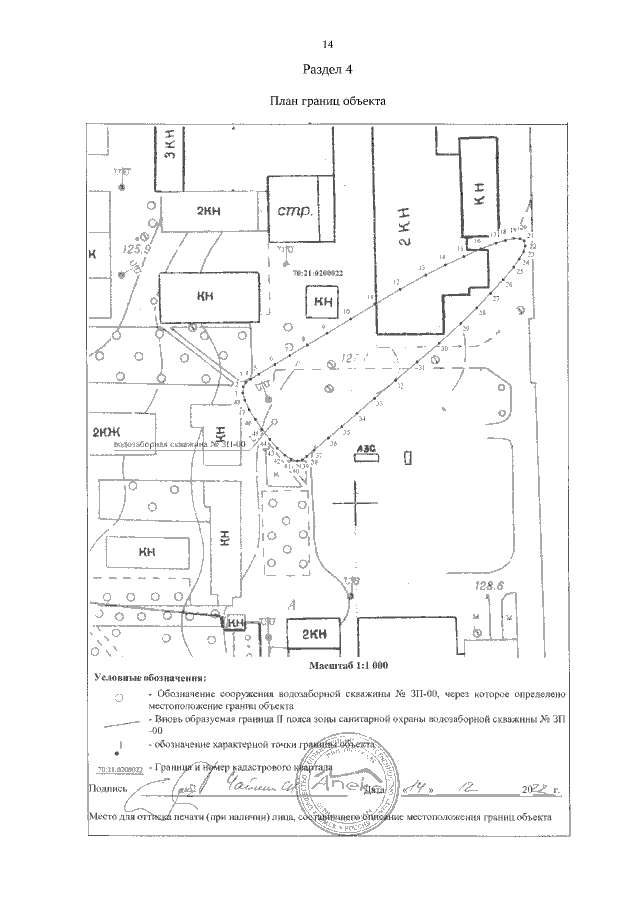
"Об установлении границ и режима зон санитарной охраны водозаборных скважин № ЗП-00 и № ТМ-574, используемых для целей питьевого и хозяйственно-бытового водоснабжения объектов ООО "Артлайф" (г. Томск, ул. Нахимова, 8/2)"
(Зарегистрирован 25.01.2023 № 55-63/2023)
Номер опубликования: 7001202301260001
Дата опубликования: 26.01.2023
Страница №14 из 27:
Увеличить