Официальное опубликование правовых актов
ОФИЦИАЛЬНОЕ ОПУБЛИКОВАНИЕ
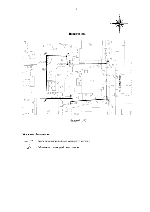
Приказ Комитета по охране объектов культурного наследия Томской области от 27.07.2022 № 0100/01-07
"О включении объекта культурного наследия регионального значения "Двухэтажный каменный флигель усадьбы И.С. Быховского", 1908 г., в единый государственный реестр объектов культурного наследия (памятников истории и культуры) народов Российской Федерации, об утверждении границ его территории и предмета охраны"
Номер опубликования: 7001202207280004
Дата опубликования: 28.07.2022
Страница №3 из 18:
Увеличить