Официальное опубликование правовых актов
ОФИЦИАЛЬНОЕ ОПУБЛИКОВАНИЕ
Приказ Комитета по охране объектов культурного наследия Томской области от 09.10.2019 № 0099/01-07
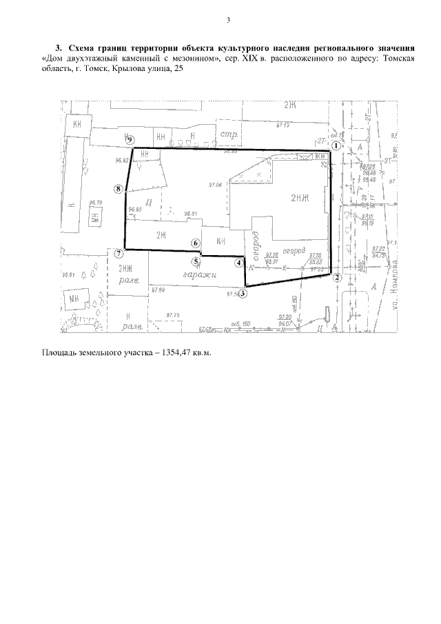
"О включении выявленного объекта культурного наследия "Дом двухэтажный каменный с мезонином", сер. ХIХ в., в единый государственный реестр объектов культурного наследия (памятников истории и культуры) народов Российской Федерации в качестве объекта культурного наследия регионального значения, об утверждении границ его территории и предмета охраны"
Номер опубликования: 7001201910100008
Дата опубликования: 10.10.2019
Страница №3 из 11:
Увеличить