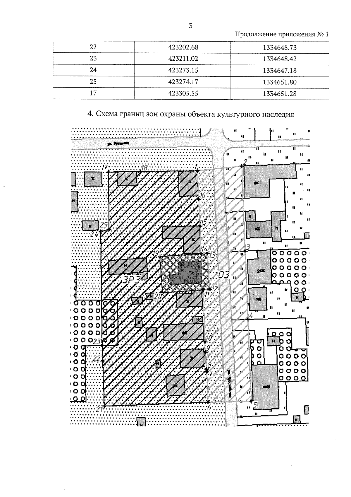
Приказ Департамента по государственной охране объектов культурного наследия Тамбовской области от 31.01.2025 № 48
"Об установлении зон охраны объекта культурного наследия регионального значения "Дом жилой" (Тамбовская область, г. Кирсанов, ул. Буденовская, д. 18) и утверждении требований к градостроительным регламентам в границах территорий данных зон"
(Зарегистрирован 31.01.2025 № 48)
"Об установлении зон охраны объекта культурного наследия регионального значения "Дом жилой" (Тамбовская область, г. Кирсанов, ул. Буденовская, д. 18) и утверждении требований к градостроительным регламентам в границах территорий данных зон"
(Зарегистрирован 31.01.2025 № 48)
Номер опубликования: 6801202502040007
Дата опубликования:
04.02.2025
