Приказ Департамента по государственной охране объектов культурного наследия Тамбовской области от 11.08.2023 № 225
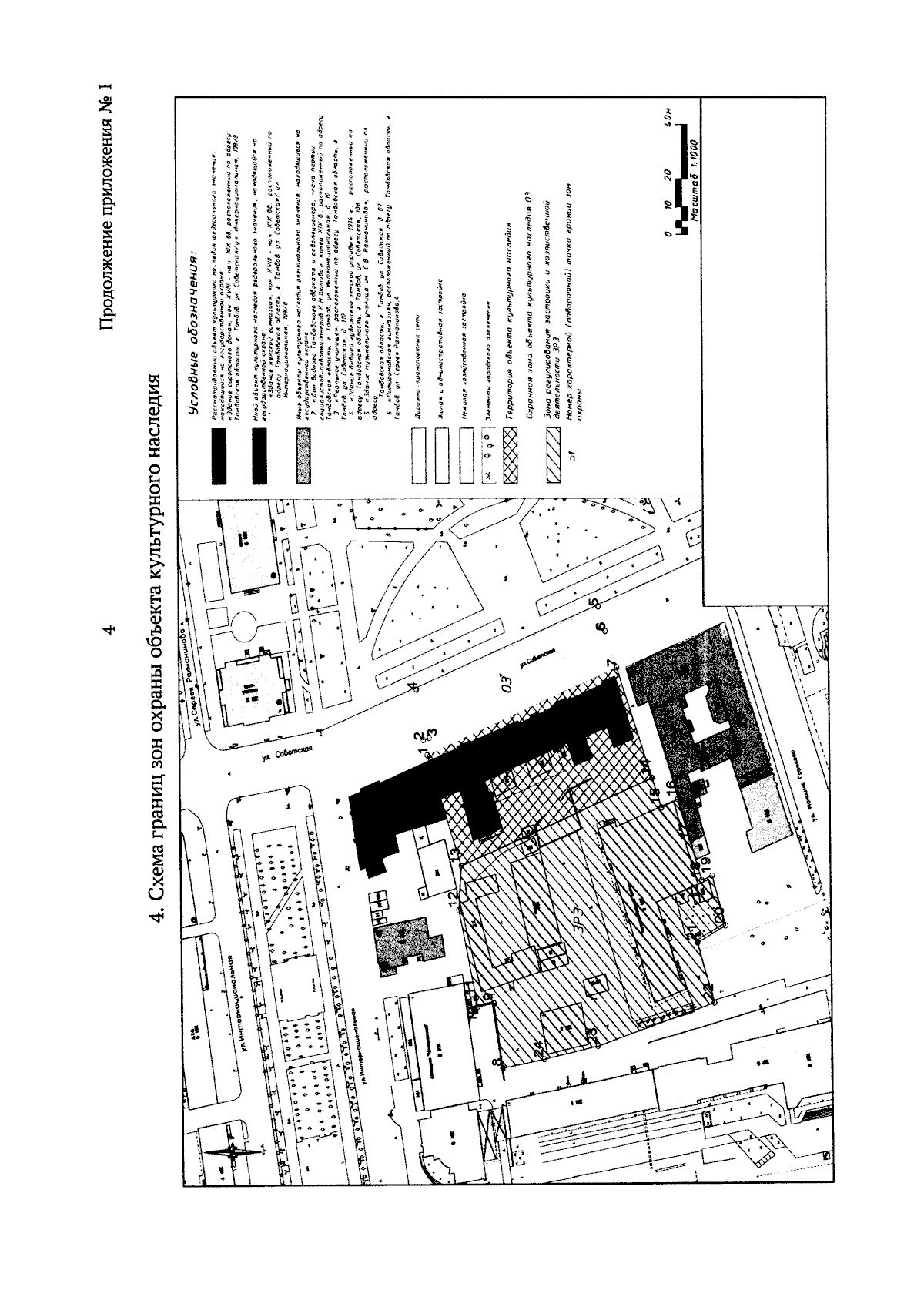
"Об установлении зон охраны объекта культурного наследия федерального значения «Здание сиротского дома, кон. XVIII - нач. ХIХ вв.» (Тамбовская область, г. Тамбов, ул. Советская/ ул. Интернациональная, д. 108/8) и утверждении требований к градостроительным регламентам в границах территорий данных зон"
(Зарегистрирован 11.08.2023 № 225)
"Об установлении зон охраны объекта культурного наследия федерального значения «Здание сиротского дома, кон. XVIII - нач. ХIХ вв.» (Тамбовская область, г. Тамбов, ул. Советская/ ул. Интернациональная, д. 108/8) и утверждении требований к градостроительным регламентам в границах территорий данных зон"
(Зарегистрирован 11.08.2023 № 225)
Номер опубликования: 6801202308160005
Дата опубликования:
16.08.2023
