Официальное опубликование правовых актов
ОФИЦИАЛЬНОЕ ОПУБЛИКОВАНИЕ
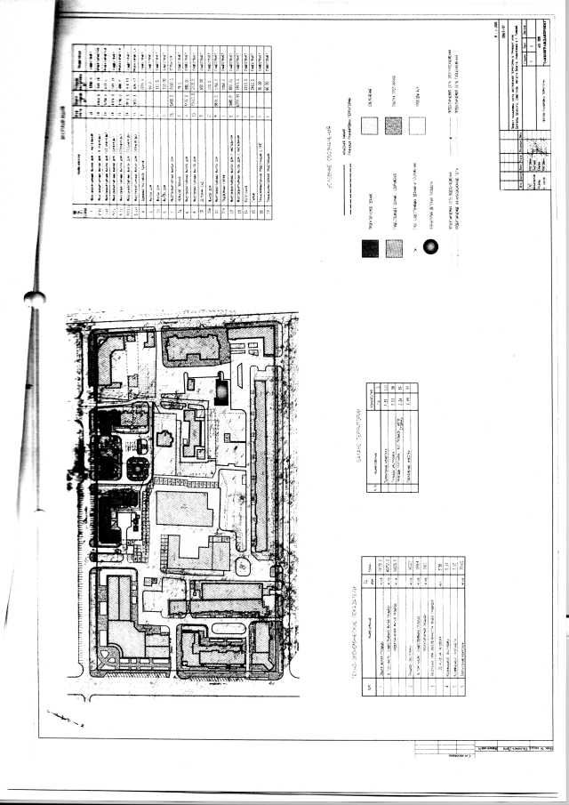
Приказ Управления градостроительства и архитектуры Тамбовской области от 18.05.2017 № 11-О
"Об утверждении проекта планировки и проекта межевания территории в границах улиц: Сергеева-Ценского, Советской, Августа Бебеля, Набережной города Тамбова Тамбовской области"
Номер опубликования: 6801201705230004
Дата опубликования: 23.05.2017
Страница №7 из 9:
Увеличить