Приказ Управления архитектуры администрации Тамбовской области от 20.03.2017 № 15
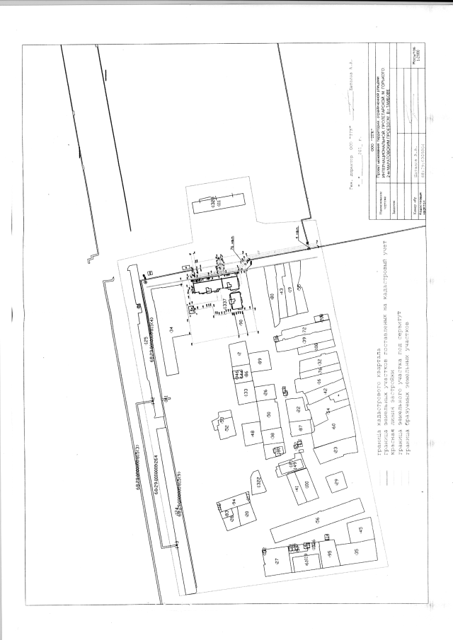
"Об утверждении проекта планировки и проекта межевания территории в границах улиц: Интернациональная, Пролетарская, М.Горького, 2-ой Маратовский проезд города Тамбова Тамбовской области"
"Об утверждении проекта планировки и проекта межевания территории в границах улиц: Интернациональная, Пролетарская, М.Горького, 2-ой Маратовский проезд города Тамбова Тамбовской области"
Номер опубликования: 6801201703280001
Дата опубликования:
28.03.2017
