Официальное опубликование правовых актов
ОФИЦИАЛЬНОЕ ОПУБЛИКОВАНИЕ
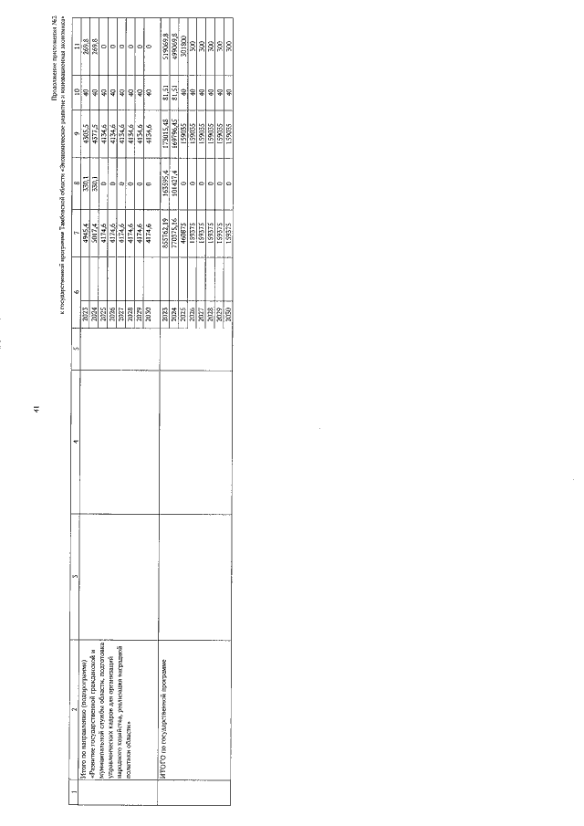
Постановление Правительства Тамбовской области от 27.12.2022 № 289
"О внесении изменений в постановление администрации области от 24.09.2013 № 1057 "Об утверждении государственной программы Тамбовской области "Экономическое развитие и инновационная экономика"
Номер опубликования: 6800202212280010
Дата опубликования: 28.12.2022
Страница №42 из 78:
Увеличить