Официальное опубликование правовых актов
ОФИЦИАЛЬНОЕ ОПУБЛИКОВАНИЕ
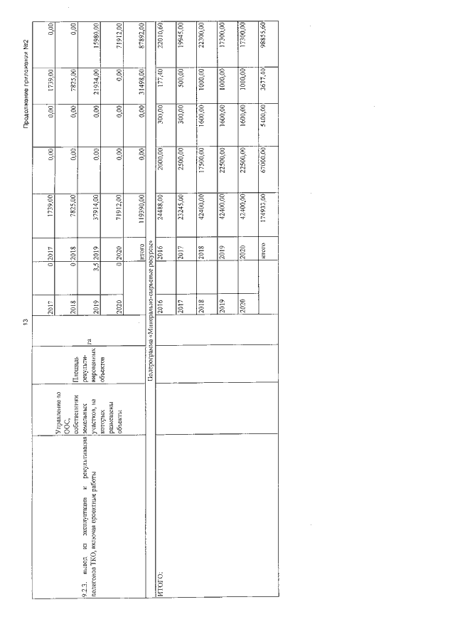
Постановление администрации Тамбовской области от 22.05.2017 № 474
"О внесении изменений в государственную программу "Охрана окружающей среды, воспроизводство и использование природных ресурсов Тамбовской области" на 2013-2020 годы"
Номер опубликования: 6800201705240001
Дата опубликования: 24.05.2017
Страница №39 из 80:
Увеличить