Официальное опубликование правовых актов
ОФИЦИАЛЬНОЕ ОПУБЛИКОВАНИЕ
Постановление Администрации Смоленской области от 24.04.2020 № 235
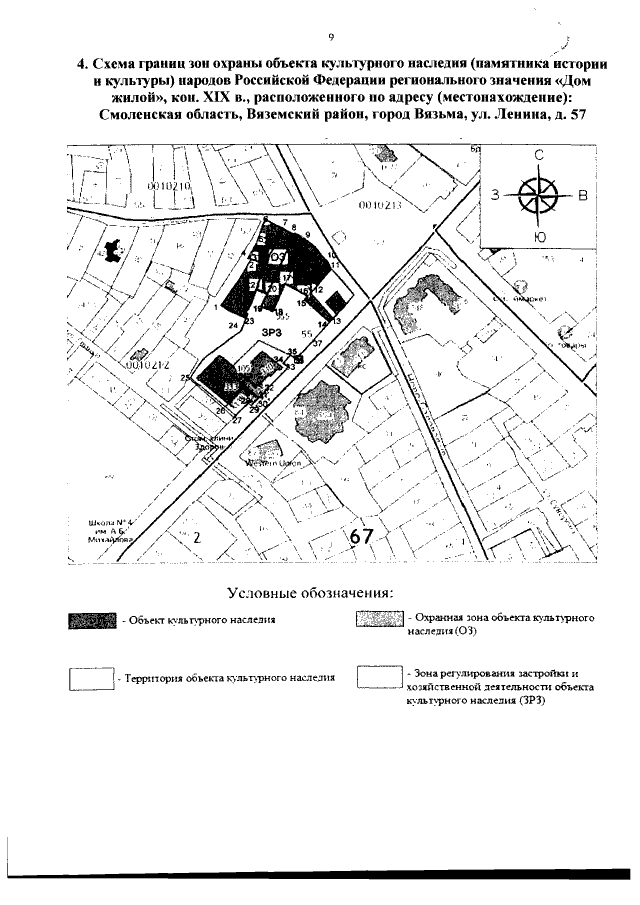
"Об установлении зон охраны объекта культурного наследия (памятника истории и культуры) народов Российской Федерации регионального значения "Дом жилой", кон. XIX в., расположенного по адресу (местонахождение): Смоленская область, Вяземский район, город Вязьма, ул. Ленина, д. 57, и утверждении требований к градостроительным регламентам в границах территорий данных зон"
Номер опубликования: 6700202004280001
Дата опубликования: 28.04.2020
Страница №9 из 13:
Увеличить