Официальное опубликование правовых актов
ОФИЦИАЛЬНОЕ ОПУБЛИКОВАНИЕ
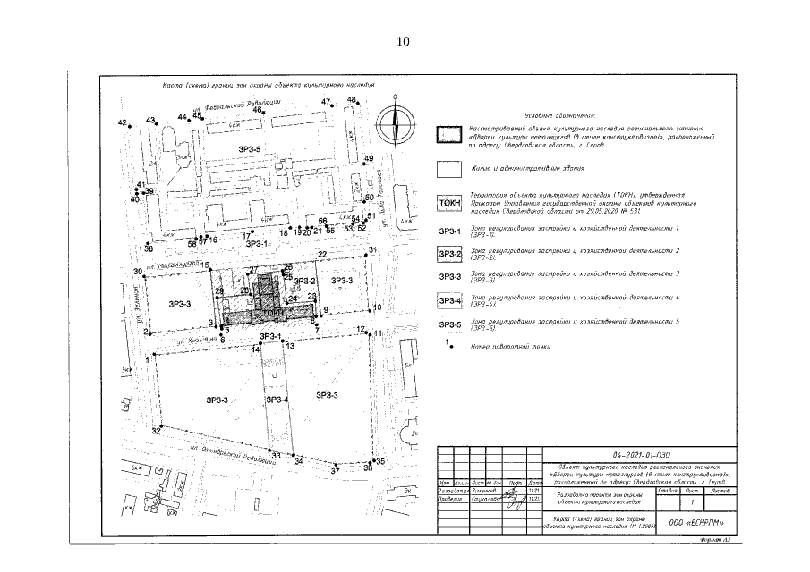
Приказ Управления государственной охраны объектов культурного наследия Свердловской области от 12.08.2022 № 533
"Об установлении зон охраны объекта культурного наследия регионального значения "Дворец культуры металлургов (в стиле конструктивизма)", расположенного по адресу: Свердловская область, г. Серов, и утверждении требований к градостроительным регламентам в границах данных зон"
Номер опубликования: 6601202208150004
Дата опубликования: 15.08.2022
Страница №10 из 16:
Увеличить