Официальное опубликование правовых актов
ОФИЦИАЛЬНОЕ ОПУБЛИКОВАНИЕ
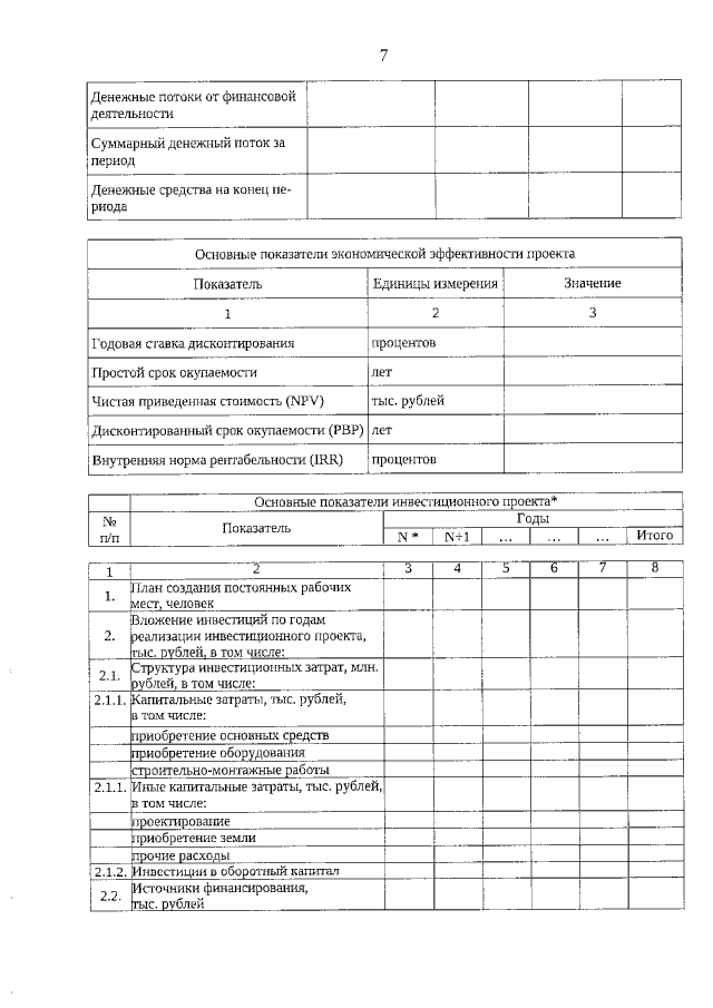
Приказ Министерства инвестиций и развития Свердловской области от 03.03.2021 № 54
"Об установлении примерной формы бизнес-плана регионального инвестиционного проекта для включения в реестр участников региональных инвестиционных проектов"
Номер опубликования: 6601202103100003
Дата опубликования: 10.03.2021
Страница №7 из 8:
Увеличить