Официальное опубликование правовых актов
ОФИЦИАЛЬНОЕ ОПУБЛИКОВАНИЕ
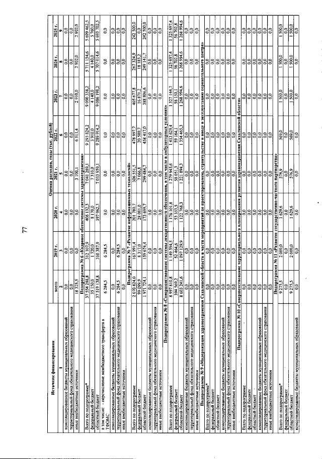
Постановление Правительства Сахалинской области от 20.06.2023 № 289
"О внесении изменений в постановление Правительства Сахалинской области от 31.05.2013 № 281 "Об утверждении государственной программы Сахалинской области "Развитие здравоохранения в Сахалинской области"
Номер опубликования: 6500202306270002
Дата опубликования: 27.06.2023
Страница №79 из 80:
Увеличить