Официальное опубликование правовых актов
ОФИЦИАЛЬНОЕ ОПУБЛИКОВАНИЕ
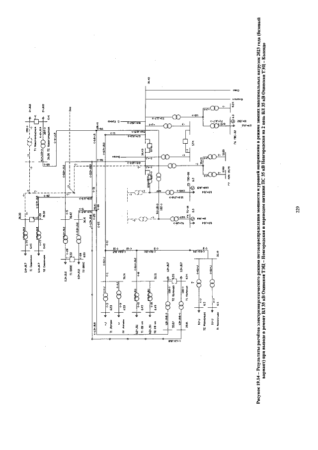
Указ Губернатора Сахалинской области от 28.05.2019 № 23
"Об утверждении Схемы и Программы развития электроэнергетики Сахалинской области на 2019 - 2023 годы"
Номер опубликования: 6500201905310001
Дата опубликования: 31.05.2019
Страница №230 из 277:
Увеличить