Официальное опубликование правовых актов
ОФИЦИАЛЬНОЕ ОПУБЛИКОВАНИЕ
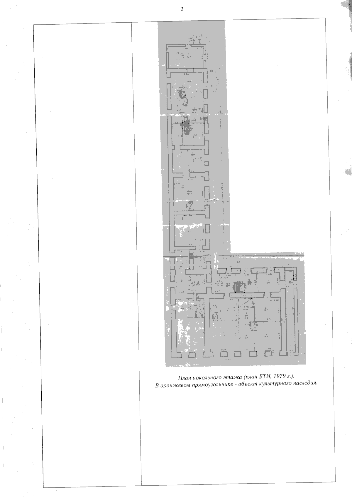
Приказ Комитета культурного наследия Саратовской области от 15.04.2025 № 01-04/135
"Об утверждении предмета охраны объекта культурного наследия регионального значения, расположенного по адресу: Саратовская область, г. Хвалынск, ул. Советская, 81"
(Зарегистрирован 16.04.2025 № 25-2025-1-661)
Номер опубликования: 6401202504230002
Дата опубликования: 23.04.2025
Страница №3 из 9:
Увеличить