Официальное опубликование правовых актов
ОФИЦИАЛЬНОЕ ОПУБЛИКОВАНИЕ
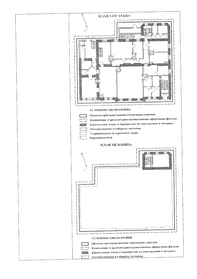
Приказ Управления по охране объектов культурного наследия Саратовской области от 08.08.2019 № 01-04/35
"Об утверждении предмета охраны объекта культурного наследия регионального значения, расположенного по адресу: г. Саратов, ул. Сакко и Ванцетти, 41"
Номер опубликования: 6401201908130001
Дата опубликования: 13.08.2019
Страница №5 из 16:
Увеличить