Приказ Управления по охране объектов культурного наследия Саратовской области от 11.04.2019 № 65
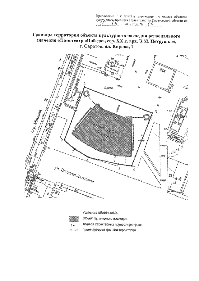
"Об утверждении границ территорий объектов культурного наследия регионального значения, расположенных по адресам: г. Саратов, пл. Кирова, 1; пр. Кирова, 13; ул. Горького, 30 (угол с пр. Кирова, 17)"
"Об утверждении границ территорий объектов культурного наследия регионального значения, расположенных по адресам: г. Саратов, пл. Кирова, 1; пр. Кирова, 13; ул. Горького, 30 (угол с пр. Кирова, 17)"
Номер опубликования: 6401201904180006
Дата опубликования:
18.04.2019
