Официальное опубликование правовых актов
ОФИЦИАЛЬНОЕ ОПУБЛИКОВАНИЕ
Постановление Правительства Саратовской области от 19.10.2023 № 952-П
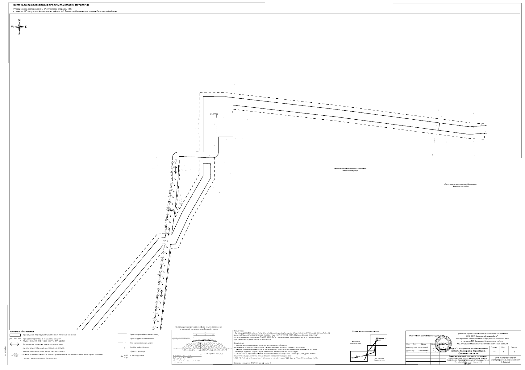
"Об утверждении документации по планировке территории с проектом межевания в его составе по объекту: "Федоровское месторождение. Обустройство скважины № 1", расположенному в границах Липовского муниципального образования Марксовского района, Калужского муниципального образования Федоровского района Саратовской области"
Номер опубликования: 6400202310250005
Дата опубликования: 25.10.2023
Страница №177 из 179:
Увеличить