Официальное опубликование правовых актов
ОФИЦИАЛЬНОЕ ОПУБЛИКОВАНИЕ
Постановление Правительства Саратовской области от 20.07.2023 № 666-П
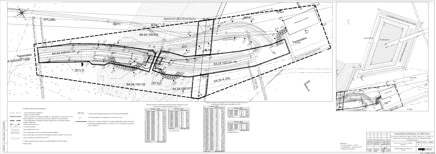
"Об утверждении документации о внесении изменений в документацию по планировке территории для размещения объекта "Реконструкция автомобильной дороги "Перелюб – Натальин Яр – Тараховка" на участке моста через овраг Широкий на км 26 + 114" в части проекта межевания территории"
Номер опубликования: 6400202307240011
Дата опубликования: 24.07.2023
Страница №8 из 49: