Распоряжение Правительства Саратовской области от 15.03.2021 № 66-Пр
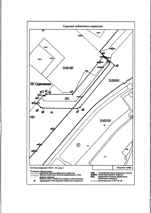
"Об установлении публичного сервитута публичному акционерному обществу "Федеральная сетевая компания Единой энергетической системы" в целях размещения объекта электросетевого хозяйства регионального значения"
"Об установлении публичного сервитута публичному акционерному обществу "Федеральная сетевая компания Единой энергетической системы" в целях размещения объекта электросетевого хозяйства регионального значения"
Номер опубликования: 6400202103180006
Дата опубликования:
18.03.2021
