Приказ Управления государственной охраны объектов культурного наследия Самарской области от 29.10.2024 № 275
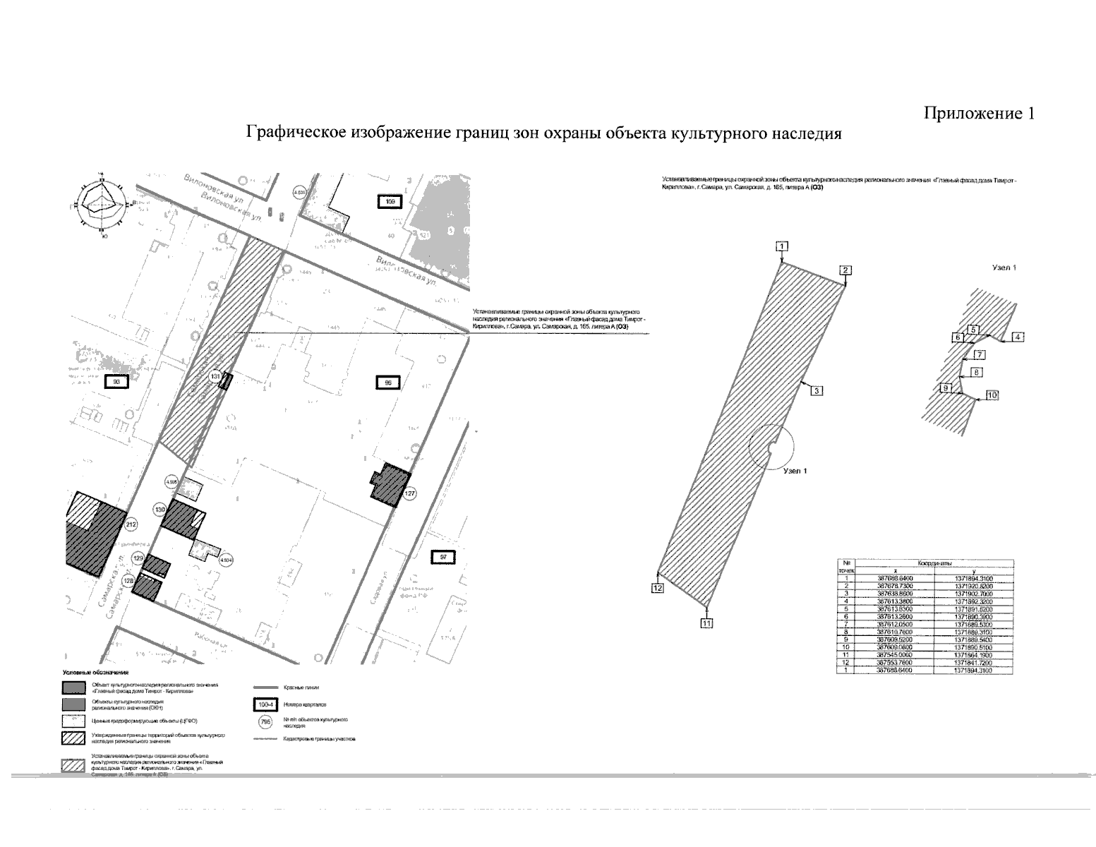
"Об утверждении границ зон охраны объекта культурного наследия регионального значения "Главный фасад дома Тимрот – Кириллова", расположенного по адресу: г. Самара, ул. Самарская, д. 165, литера А, режимов использования земель и требований к градостроительным регламентам в границах данных зон"
(Зарегистрирован 29.10.2024 № УГООКН 24275)
"Об утверждении границ зон охраны объекта культурного наследия регионального значения "Главный фасад дома Тимрот – Кириллова", расположенного по адресу: г. Самара, ул. Самарская, д. 165, литера А, режимов использования земель и требований к градостроительным регламентам в границах данных зон"
(Зарегистрирован 29.10.2024 № УГООКН 24275)
Номер опубликования: 6301202410300001
Дата опубликования:
30.10.2024
