Официальное опубликование правовых актов
ОФИЦИАЛЬНОЕ ОПУБЛИКОВАНИЕ
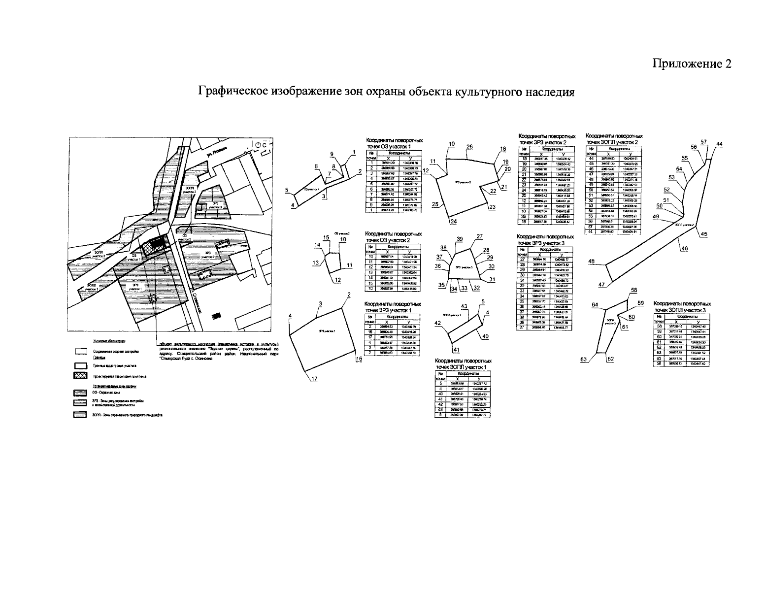
Приказ Управления государственной охраны объектов культурного наследия Самарской области от 19.09.2023 № 327
"Об утверждении границ территории и зон охраны объекта культурного наследия регионального значения "Здание церкви", расположенного по адресу: Ставропольский район, Национальный парк "Самарская Лука", с. Осиновка, режимов использования земель и требований к градостроительным регламентам в границах данных зон"
(Зарегистрирован 19.09.2023 № УГООКН 23327)
Номер опубликования: 6301202309210010
Дата опубликования: 21.09.2023
Страница №25 из 25:
Увеличить