Официальное опубликование правовых актов
ОФИЦИАЛЬНОЕ ОПУБЛИКОВАНИЕ
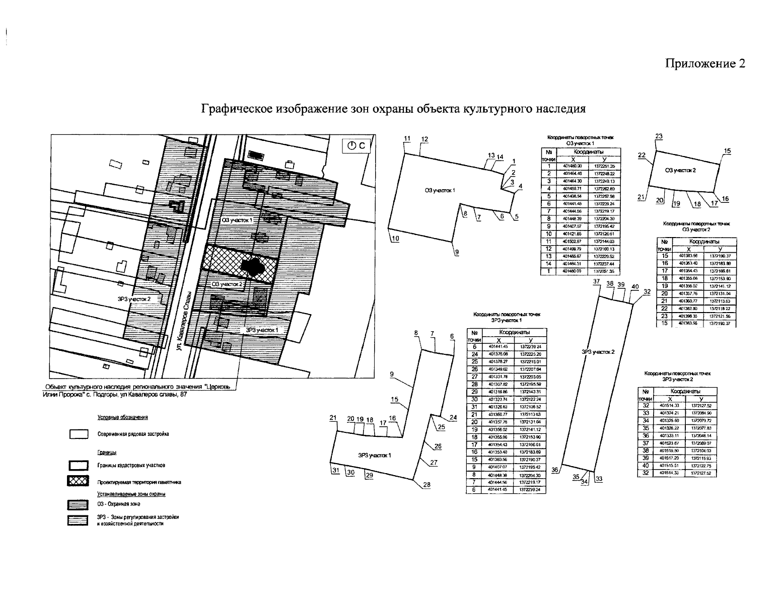
Приказ Управления государственной охраны объектов культурного наследия Самарской области от 12.09.2023 № 324
"Об утверждении границ территории и зон охраны объекта культурного наследия регионального значения "Церковь Илии Пророка", расположенного по адресу: Волжский район, c. Подгоры, ул. Кавалеров Славы, 87 (на территории Заволжского Свято-Ильинского женского монастыря), режимов использования земель и требований к градостроительным регламентам в границах данных зон"
(Зарегистрирован 12.09.2023 № УГООКН 23324)
Номер опубликования: 6301202309130004
Дата опубликования: 13.09.2023
Страница №21 из 21:
Увеличить