Официальное опубликование правовых актов
ОФИЦИАЛЬНОЕ ОПУБЛИКОВАНИЕ
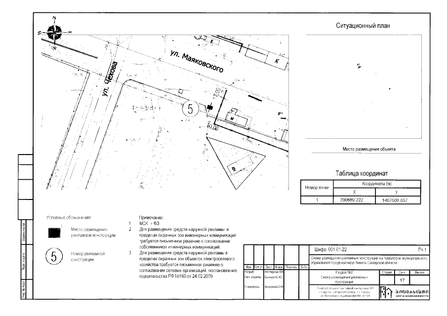
Приказ Министерства имущественных отношений Самарской области от 20.06.2022 № 1017
"Об утверждении схемы размещения рекламных конструкций на территории городского округа Кинель Самарской области"
Номер опубликования: 6301202206220003
Дата опубликования: 22.06.2022
Страница №17 из 51:
Увеличить