Распоряжение Правительства Самарской области от 10.04.2020 № 146-р
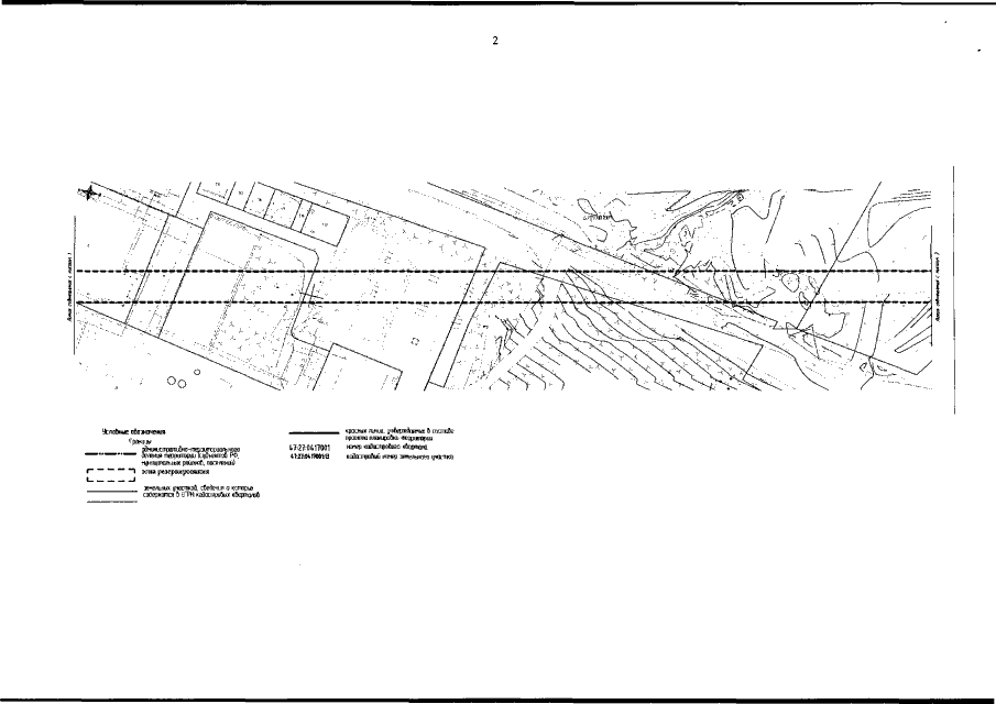
"О резервировании земель для государственных нужд Самарской области для размещения линейного объекта регионального значения "Пассажирская подвесная канатная дорога к инвестиционному объекту "Южный город" в границах городского округа Самара и муниципального района Волжский Самарской области"
"О резервировании земель для государственных нужд Самарской области для размещения линейного объекта регионального значения "Пассажирская подвесная канатная дорога к инвестиционному объекту "Южный город" в границах городского округа Самара и муниципального района Волжский Самарской области"
Номер опубликования: 6300202004150001
Дата опубликования:
15.04.2020
