Постановление Главного управления архитектуры и градостроительства Рязанской области от 02.09.2022 № 474-п
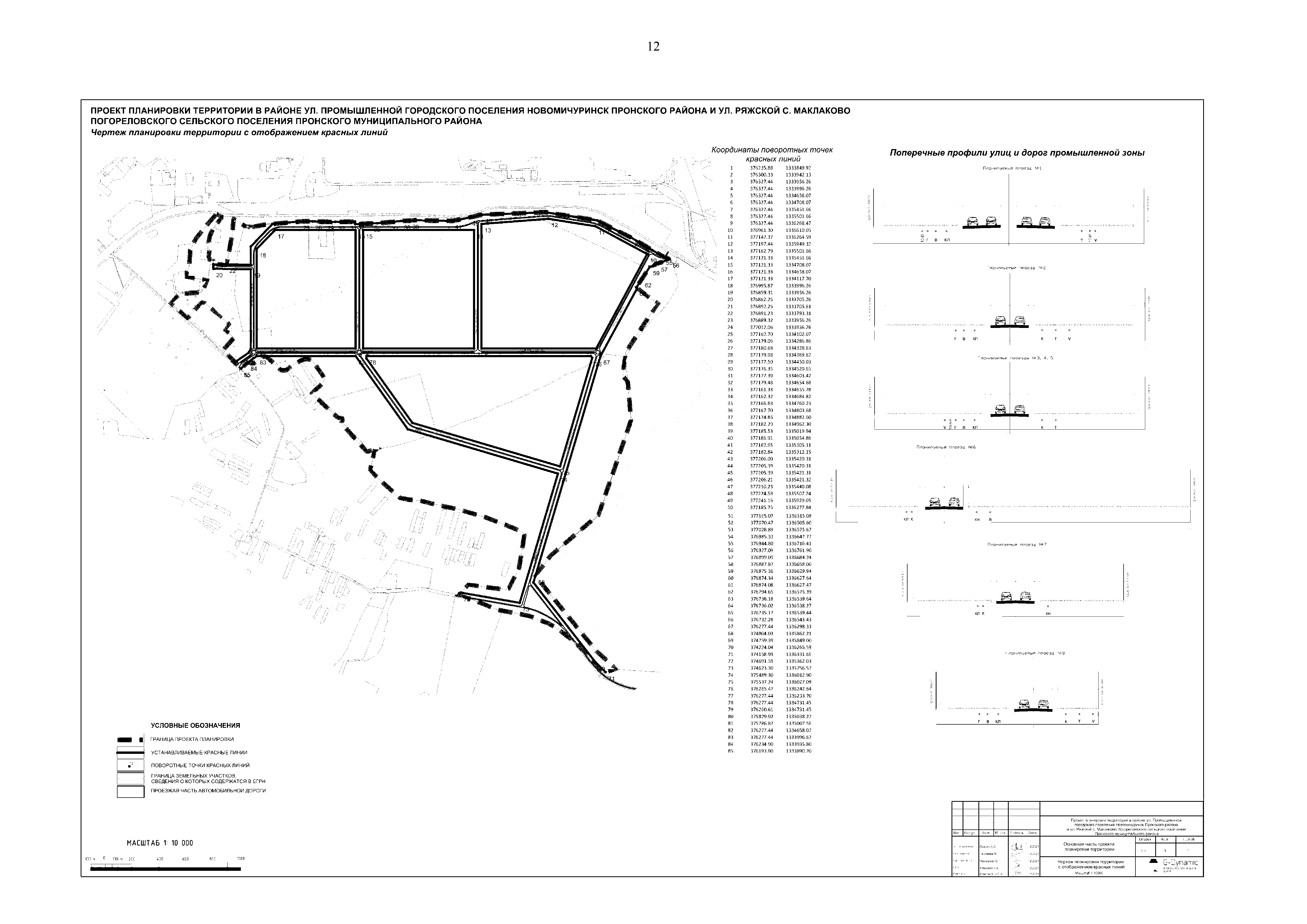
"Об утверждении документации по планировке территории "Проект планировки территории в районе ул. Промышленной городского поселения Новомичуринск Пронского района и ул. Ряжской с. Маклаково Погореловского сельского поселения Пронского муниципального района"
"Об утверждении документации по планировке территории "Проект планировки территории в районе ул. Промышленной городского поселения Новомичуринск Пронского района и ул. Ряжской с. Маклаково Погореловского сельского поселения Пронского муниципального района"
Номер опубликования: 6201202209050001
Дата опубликования:
05.09.2022
