Постановление Главного управления архитектуры и градостроительства Рязанской области от 29.04.2020 № 246-п
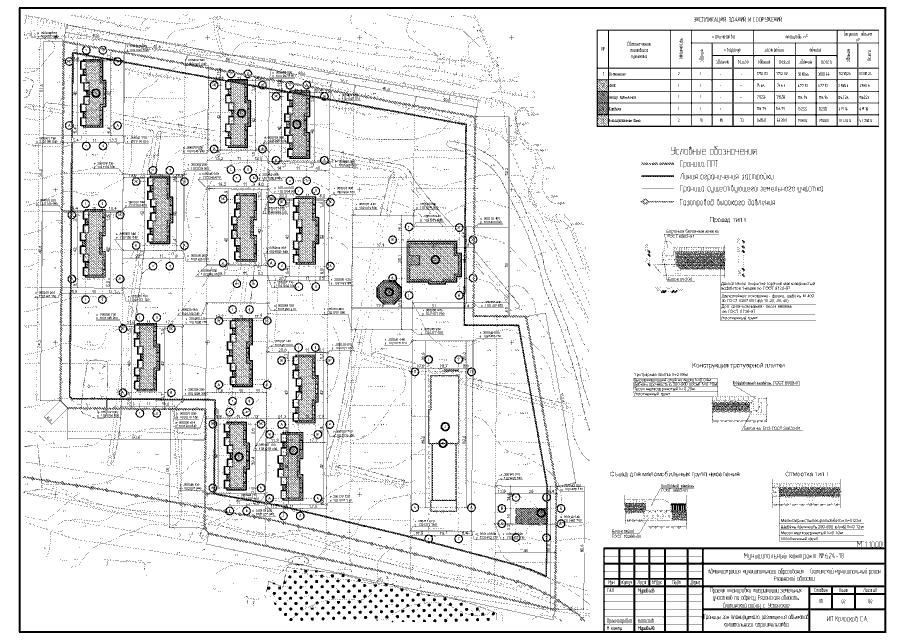
"Об утверждении проекта планировки территории и проекта межевания территории земельных участков по адресу: Рязанской области, Скопинский район, с. Успенское"
"Об утверждении проекта планировки территории и проекта межевания территории земельных участков по адресу: Рязанской области, Скопинский район, с. Успенское"
Номер опубликования: 6201202005060003
Дата опубликования:
06.05.2020
