Официальное опубликование правовых актов
ОФИЦИАЛЬНОЕ ОПУБЛИКОВАНИЕ
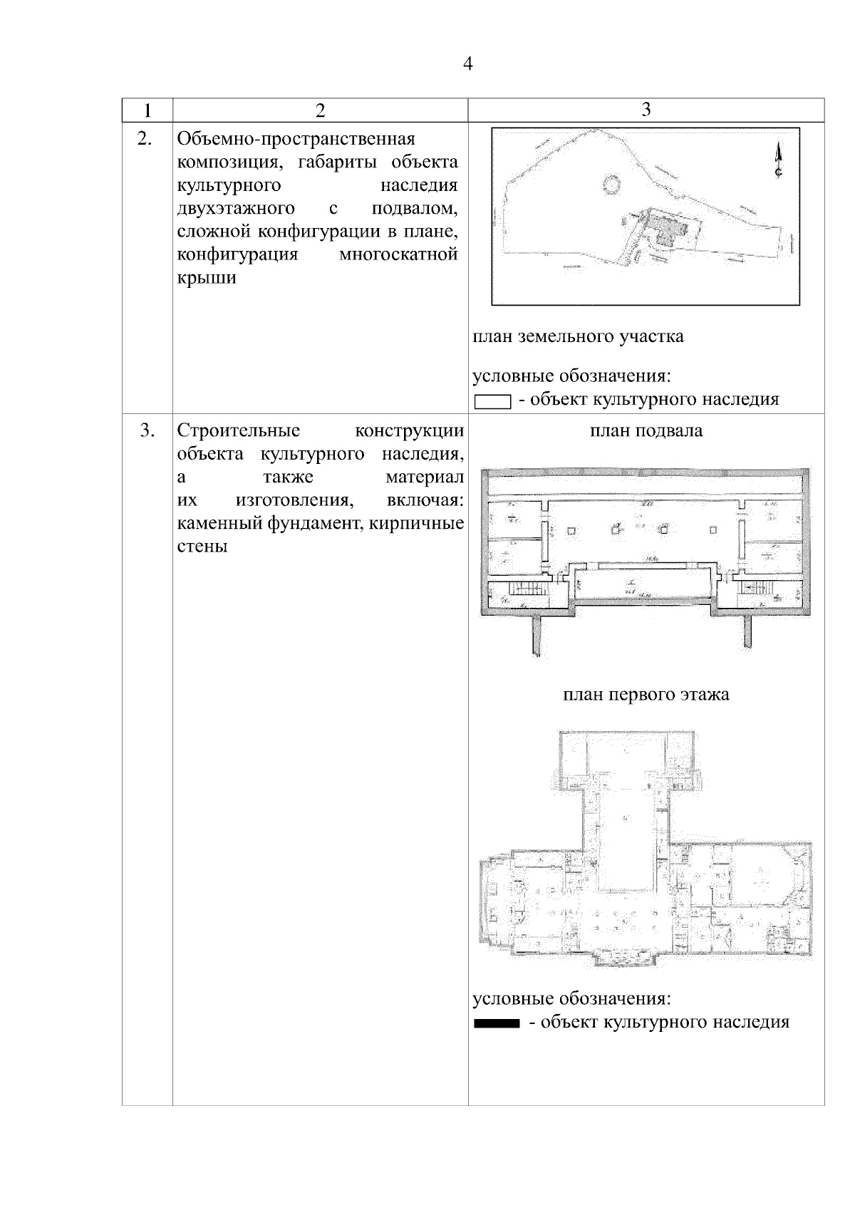
Постановление Комитета по охране объектов культурного наследия Ростовской области от 17.09.2025 № 2235
"Об утверждении предмета охраны объекта культурного наследия регионального значения (памятника) "Здание Дворца культуры имени Маяковского", расположенного по адресу: Ростовская область, г. Каменск-Шахтинский, ул. Парк Культуры, 8, литер А"
(Зарегистрирован 17.09.2025 № 2235)
Номер опубликования: 6101202509190016
Дата опубликования: 19.09.2025
Страница №4 из 53:
Увеличить