Постановление Комитета по охране объектов культурного наследия Ростовской области от 15.07.2025 № 1755
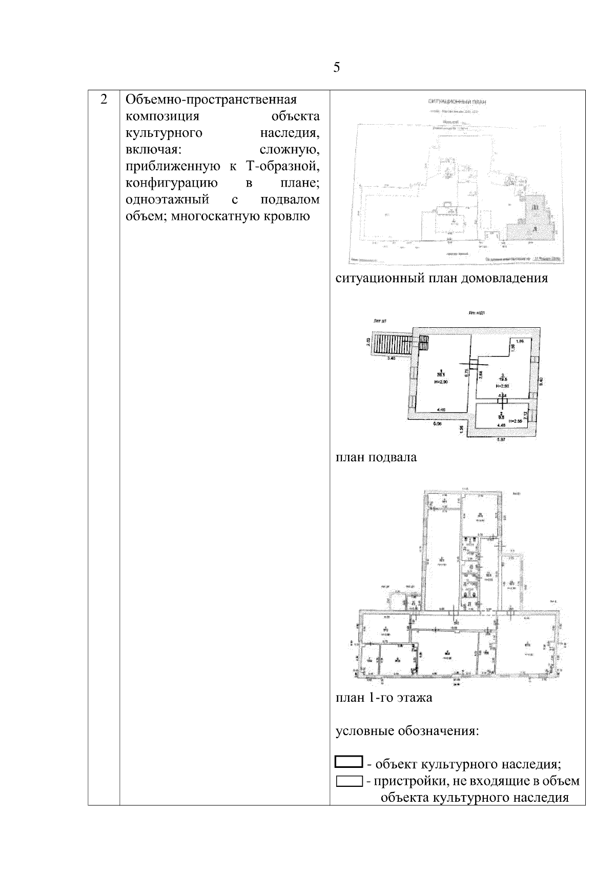
"О включении выявленного объекта культурного наследия "Здание мужского 4-х классного городского училища, в котором в 1873-74 годы учились Антон Павлович Чехов и его братья Александр, Иван и Николай" в единый государственный реестр объектов культурного наследия (памятников истории и культуры) народов Российской Федерации в качестве объекта культурного наследия регионального значения (памятника) с наименованием "Жилой дом М. Шакуновой", посл. четв. XIX в., расположенного по адресу: Ростовская область, городской округ город Таганрог, город Таганрог, переулок Красный, дом 20, об утверждении предмета охраны, границ территории и требований к осуществлению деятельности в границах его территории"
(Зарегистрирован 15.07.2025 № 1755)
"О включении выявленного объекта культурного наследия "Здание мужского 4-х классного городского училища, в котором в 1873-74 годы учились Антон Павлович Чехов и его братья Александр, Иван и Николай" в единый государственный реестр объектов культурного наследия (памятников истории и культуры) народов Российской Федерации в качестве объекта культурного наследия регионального значения (памятника) с наименованием "Жилой дом М. Шакуновой", посл. четв. XIX в., расположенного по адресу: Ростовская область, городской округ город Таганрог, город Таганрог, переулок Красный, дом 20, об утверждении предмета охраны, границ территории и требований к осуществлению деятельности в границах его территории"
(Зарегистрирован 15.07.2025 № 1755)
Номер опубликования: 6101202507180006
Дата опубликования:
18.07.2025
