Постановление Комитета по охране объектов культурного наследия Ростовской области от 13.12.2024 № 2775
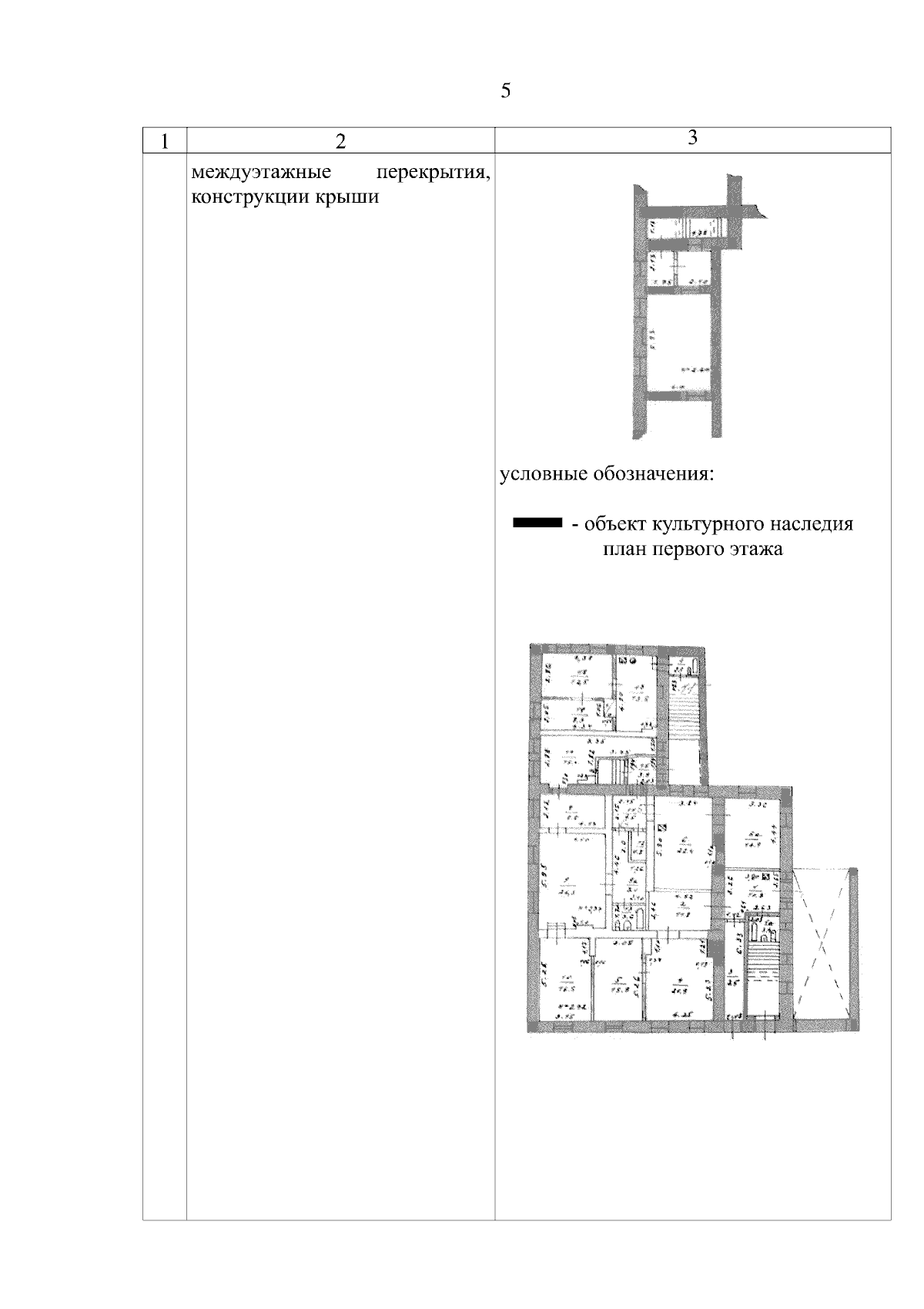
"Об утверждении предмета охраны объекта культурного наследия регионального значения (памятника) "Жилой дом Н.Г. Дивариса", расположенного по адресу: Ростовская область, г. Таганрог, пер. Итальянский, 22, литеры А, А2"
(Зарегистрирован 13.12.2024 № 2775)
"Об утверждении предмета охраны объекта культурного наследия регионального значения (памятника) "Жилой дом Н.Г. Дивариса", расположенного по адресу: Ростовская область, г. Таганрог, пер. Итальянский, 22, литеры А, А2"
(Зарегистрирован 13.12.2024 № 2775)
Номер опубликования: 6101202412160025
Дата опубликования:
16.12.2024
