Официальное опубликование правовых актов
ОФИЦИАЛЬНОЕ ОПУБЛИКОВАНИЕ
Постановление Комитета по охране объектов культурного наследия Ростовской области от 07.06.2024 № 1142
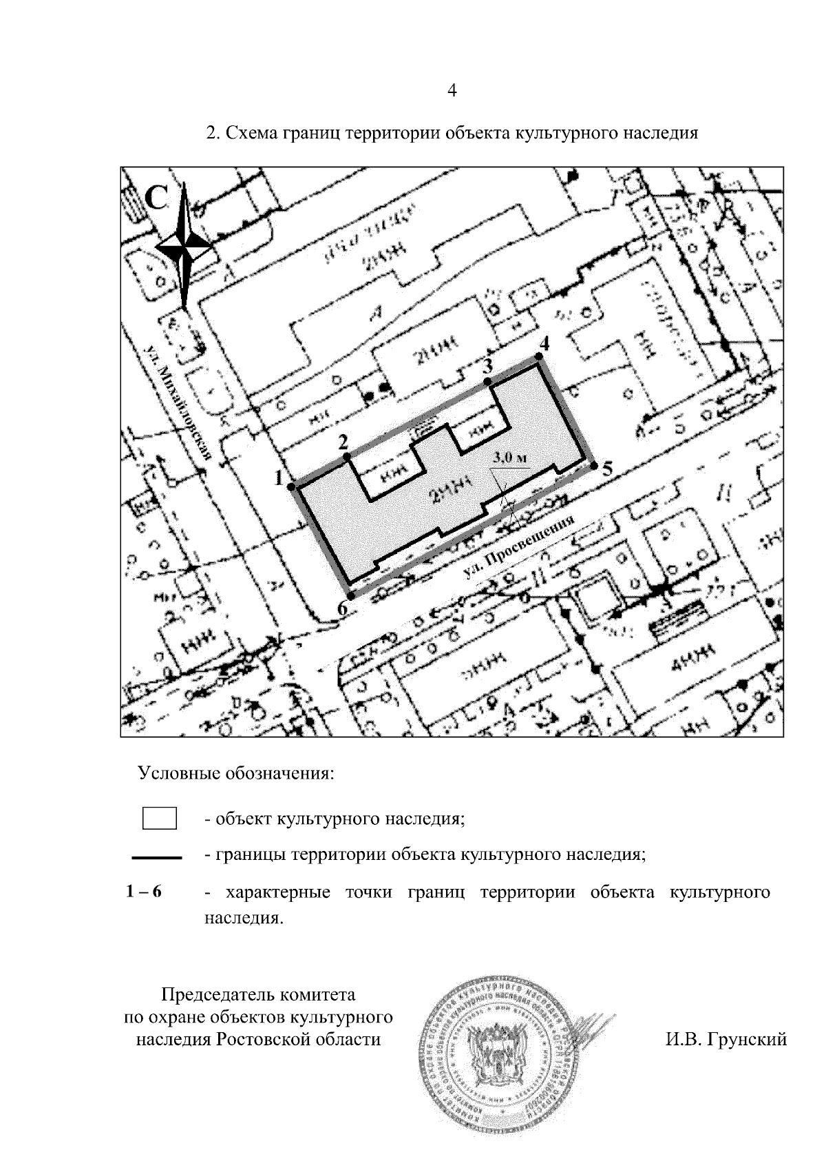
"О включении выявленного объекта культурного наследия "Мастерские машиностроительного колледжа" в единый государственный реестр объектов культурного наследия (памятников истории и культуры) народов Российской Федерации в качестве объекта культурного наследия регионального значения (памятника) с наименованием "Здание управления городской полиции Новочеркасска", первая половина 1900-х годов, расположенного по адресу: Ростовская обл., г. Новочеркасск, ул. Просвещения, д. 138, об утверждении границ территории и требований к осуществлению деятельности в границах его территории"
(Зарегистрирован 07.06.2024 № 1142)
Номер опубликования: 6101202406110090
Дата опубликования: 11.06.2024
Страница №4 из 5:
Увеличить