Официальное опубликование правовых актов
ОФИЦИАЛЬНОЕ ОПУБЛИКОВАНИЕ
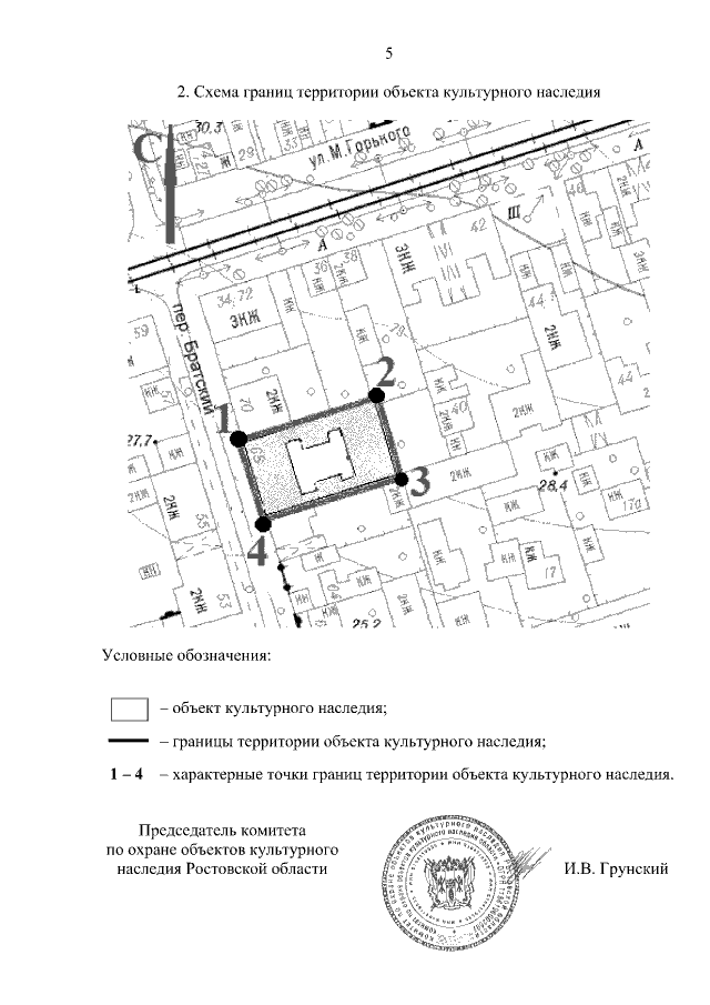
Постановление Комитета по охране объектов культурного наследия Ростовской области от 20.04.2021 № 20/01-01/1465
"О внесении изменения в постановление комитета по охране объектов культурного наследия Ростовской области от 02.12.2019 № 20/01-01/1572"
Номер опубликования: 6101202104220024
Дата опубликования: 22.04.2021
Страница №5 из 6:
Увеличить