Официальное опубликование правовых актов
ОФИЦИАЛЬНОЕ ОПУБЛИКОВАНИЕ
Постановление Комитета по охране объектов культурного наследия Ростовской области от 16.12.2019 № 20/01-01/1933
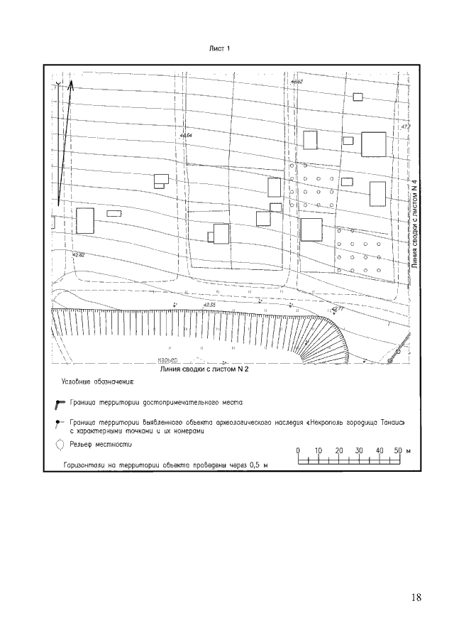
"О включении выявленного объекта культурного наследия – достопримечательное место "Историко-культурный комплекс "Танаис", в единый государственный реестр объектов культурного наследия (памятников истории и культуры) народов Российской Федерации, об утверждении предмета охраны, границ территории и об установлении требований к осуществлению деятельности и градостроительным регламентам в границах территории объекта культурного наследия"
Номер опубликования: 6101201912230078
Дата опубликования: 23.12.2019
Страница №18 из 926:
Увеличить